Bản vẽ kết cấu nhà 2 tầng đóng vai trò là “bản đồ gene” quyết định sự an toàn và tuổi thọ của toàn bộ công trình dân dụng. Việc thấu hiểu các thông số về tải trọng, móng cọc hay hệ khung chịu lực giúp gia chủ kiểm soát chất lượng thi công và tối ưu chi phí vật tư hiệu quả. Bài viết này cung cấp cái nhìn chuyên sâu từ góc độ kỹ sư về bộ hồ sơ thiết kế chuẩn mực, giúp bạn hiện thực hóa không gian sống bền vững.
Tầm quan trọng của hồ sơ kết cấu trong xây dựng nhà phố
Trong lĩnh vực xây dựng, nếu bản vẽ kiến trúc là diện mạo thì bản vẽ kết cấu chính là khung xương. Một sai sót nhỏ trong tính toán diện tích cốt thép hoặc mác bê tông có thể dẫn đến hiện tượng nứt dầm, lún móng sau vài năm sử dụng.
Đặc biệt với địa hình địa chất phức tạp tại Việt Nam, việc sở hữu một bộ hồ sơ tính toán kỹ lưỡng là rào cản bảo vệ tài sản lớn nhất của gia chủ. Sự minh bạch trong bản vẽ cũng giúp nhà thầu dễ dàng báo giá, tránh tình trạng “vẽ” thêm khối lượng thép không cần thiết hoặc bớt xén vật liệu gây nguy hiểm.
Thành phần hồ sơ AutoCAD kiến trúc nhà 2 tầng tiêu chuẩn 2026
Bản vẽ AutoCAD là ngôn ngữ kỹ thuật chung giữa kiến trúc sư và thợ thi công. Độ chính xác đến từng milimet trên phần mềm đảm bảo việc lắp đặt thiết bị và phân chia không gian không xảy ra xung đột thực địa.
Bản vẽ AutoCAD mặt bằng công năng
Mặt bằng là lát cắt ngang giúp quan sát cách bố trí phòng ốc, luồng giao thông và vị trí các cột chịu lực.
Bản vẽ mặt bằng nhà 2 tầngHình 1: Bản vẽ mặt bằng thể hiện lưới trục, kích thước tổng thể và sơ đồ công năng các phòng.
Bản vẽ này xác định ranh giới xây dựng, khoảng lùi và cách tối ưu diện tích. Đối với nhà phố, việc đặt cầu thang và giếng trời tại vị trí trung tâm thường được ưu tiên để cân bằng ánh sáng và đối lưu không khí.
Bản vẽ AutoCAD mặt đứng kiến trúc
Mặt đứng thể hiện hình dáng bên ngoài, tỷ lệ chiều cao và các chi tiết trang trí ngoại thất của ngôi nhà.
Bản vẽ mặt đứng nhà 2 tầngHình 2: Chi tiết mặt đứng với cao độ chuẩn xác, sử dụng vật liệu đá ốp và hệ nan gỗ trang trí hiện đại.
Thông số cao độ trong bản vẽ mặt đứng (thường là +7.600m cho nhà 2 tầng) giúp thợ xây dựng xác định điểm dừng của các tầng và độ dốc của mái, đảm bảo tính thẩm mỹ đúng như phối cảnh.
Bản vẽ AutoCAD mặt cắt kỹ thuật
Mặt cắt cung cấp thông tin về cấu tạo lớp sàn, dầm và các không gian thông tầng mà mặt bằng không hiển thị hết được.
Bản vẽ mặt cắt nhà 2 tầngHình 3: Mặt cắt dọc công trình làm rõ cấu tạo móng, sàn và hệ mái đua thoát nước.
Mặt cắt là căn cứ để kỹ sư kiểm tra sự tương quan giữa chiều cao thông thủy của phòng và hệ thống kỹ thuật chạy ngầm trên trần thạch cao.
Bản vẽ chi tiết cấu tạo cầu thang
Cầu thang không chỉ là lối đi mà còn là xương sống kết nối các tầng, yêu cầu độ chính xác cực cao về số bậc và độ dốc.
Bản vẽ chi tiết cầu thangHình 4: Chi tiết cấu tạo thang với thông số bậc cao 170mm, rộng 260mm đạt chuẩn nhân trắc học.
Việc tính toán dầm thang và bản thang vững chắc giúp hạn chế độ rung khi di chuyển và đảm bảo an toàn cho người già, trẻ nhỏ.
Phân tích bản vẽ kết cấu nhà 2 tầng và giải pháp móng
Phần kết cấu tập trung vào việc tính toán khả năng chịu lực của thép và bê tông dựa trên tải trọng tĩnh (trọng lượng nhà) và tải trọng động (con người, nội thất, gió).
Hệ thống kết cấu nhà 2 tầngHình 5: Sơ đồ bố trí thép móng, cột và dầm sàn theo lưới trục chịu lực ổn định.
Tại các khu vực đất yếu, bản vẽ kết cấu nhà 2 tầng thường chỉ định móng cọc ép hoặc móng băng để phân bổ tải trọng đều xuống nền đất. Việc sử dụng thép chất lượng cao, đúng chủng loại như thép vằn miền Nam hay thép ống đúc cho các hạng mục bổ trợ giúp công trình đạt độ bền trên 50 năm.
⚠️ Lưu ý: Trước khi triển khai bản vẽ kết cấu, gia chủ bắt buộc phải thực hiện khoan thăm dò địa chất để lựa chọn loại móng phù hợp, tránh hiện tượng lún không đều gây nứt tường.
Hệ thống kỹ thuật điện nước và phối cảnh 3D trực quan
Một ngôi nhà hiện đại cần hệ thống Cơ – Điện – Nước (MEP) được thiết kế đồng bộ ngay từ đầu để tránh phải đục phá tường sau khi hoàn thiện.
Sơ đồ cấp thoát nước và điện lưới
Bản vẽ điện nước giúp định vị chính xác lộ trình đi ống, vị trí tủ điện tổng và hệ thống bể phốt, bể nước ngầm.
Sơ đồ điện nước nhà 2 tầngHình 6: Bản vẽ thi công điện nước chi tiết, tách biệt hệ thống chiếu sáng và ổ cắm công suất lớn.
Mô phỏng phối cảnh 3D nội thất
Phối cảnh 3D giúp gia chủ “du lịch” trong ngôi nhà tương lai của mình, kịp thời điều chỉnh màu sắc và phong cách trước khi mua sắm đồ đạc.
Phối cảnh 3D tầng trệtHình 7: Phối cảnh nội thất tầng trệt theo phong cách Open Concept, tối ưu ánh sáng tự nhiên.
Phối cảnh 3D tầng 2Hình 8: Không gian nghỉ ngơi tại tầng 2 với sự kết hợp hài hòa giữa vật liệu gỗ và kính cường lực.
Tuyển tập mẫu bản vẽ nhà 2 tầng tối ưu nhất 2026
Dưới đây là các phương án thiết kế phổ biến, đáp ứng nhiều loại diện tích đất khác nhau tại Việt Nam.
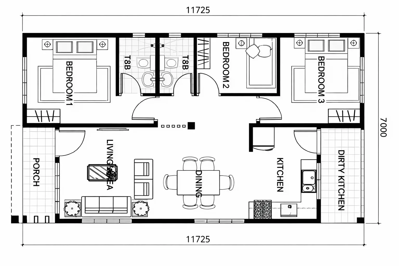
Phương án nhà 2 tầng diện tích 7x10m
Mẫu nhà này phù hợp cho gia đình từ 3-4 thành viên với chi phí xây dựng vừa phải.
Mẫu nhà 2 tầng 7x10mHình 9: Bản vẽ bố trí công năng nhà 7x10m, ưu tiên phòng khách rộng lớn tại tầng trệt.
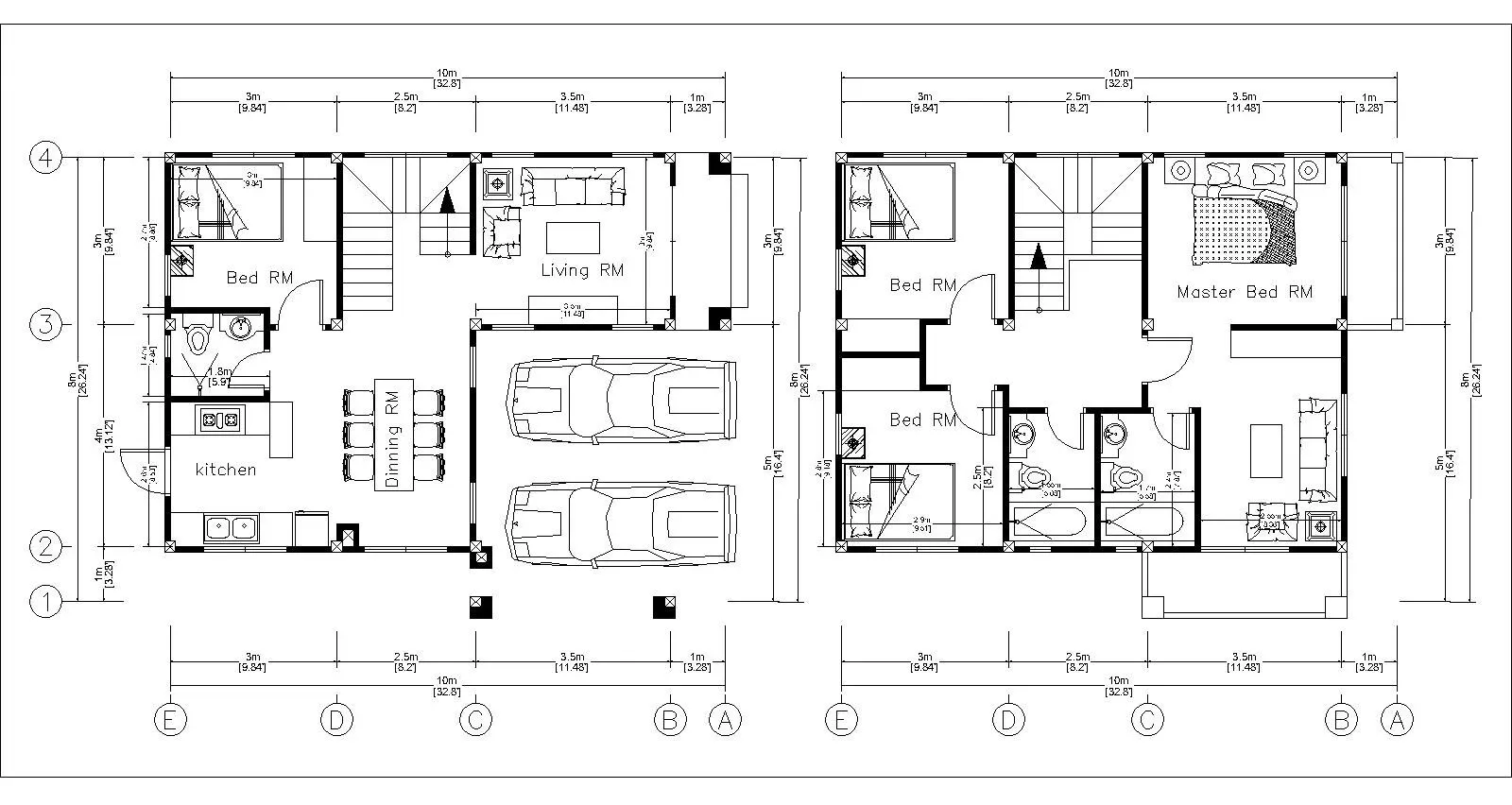
Thiết kế hiện đại cho quỹ đất 8x10m
Với bề ngang 8m, ngôi nhà có thể chia làm hai khối kiến trúc tạo sự sang trọng và thông thoáng.
Mẫu nhà 2 tầng 8x10mHình 10: Sơ đồ mặt bằng nhà 8x10m với 3 phòng ngủ và khu vực gara ô tô tiện lợi.
Giải pháp nhà ống 2 tầng 5x20m chuyên sâu
Nhà ống là đặc sản của đô thị Việt Nam, bài toán khó nhất là việc xử lý ánh sáng và thông gió tự nhiên.
Bản vẽ nhà ống 3D 5x14mHình 11: Mô phỏng 3D nhà ống 5x20m tích hợp giếng trời và mảng xanh trong nhà.
Mặt bằng tầng 2 nhà ốngHình 12: Bố trí tầng 2 nhà ống với các phòng ngủ khép kín, đảm bảo tính riêng tư tuyệt đối.
Thiết kế biệt thự phố 7x12m
Kích thước này cho phép kiến trúc sư sáng tạo nhiều không gian chức năng như phòng sinh hoạt chung hoặc phòng thờ riêng biệt.
Bản vẽ biệt thự phố 7x12mHình 13: Bản vẽ kỹ thuật nhà 7x12m với hệ thống sảnh đón khách sang trọng.
Phân chia khu vực nhà 7x12mHình 14: Sơ đồ phân khu chức năng giữa không gian tĩnh (ngủ) và động (khách, bếp).
Mẫu nhà vuông 9x10m tối ưu công năng
Dạng nhà vuông cực kỳ tốt về phong thủy và dễ dàng bố trí nội thất do các phòng có kích thước tương đồng.
Mẫu nhà vuông 9x10mHình 15: Bản vẽ thiết kế nhà 9x10m với diện tích sử dụng lên đến 180m2.
Kiến trúc nhà 2 tầng mái Thái truyền thống
Mái Thái luôn đứng đầu lựa chọn tại các vùng khí hậu nóng ẩm nhờ khả năng chống nóng và thoát nước mưa cực tốt.
Bản vẽ nhà mái Thái 2 tầngHình 16: Chi tiết độ dốc mái Thái và cấu tạo vì kèo thép chịu lực vững chắc.
Sơ đồ nhà 2 tầng 3 phòng ngủ và 4 phòng ngủ
Tùy vào số lượng thành viên, việc phân chia số lượng phòng ngủ trên bản vẽ cần cân nhắc kỹ để không làm không gian bị vụn.
Bản vẽ nhà 3 phòng ngủHình 17: Mẫu thiết kế nhà 3 phòng ngủ tích hợp sân vườn mini.
Bản vẽ nhà 4 phòng ngủHình 18: Bố trí mặt bằng nhà 4 phòng ngủ cho gia đình đa thế hệ.
Thiết kế nhà phố hẹp 5x14m
Với chiều sâu hạn chế, việc sử dụng cầu thang một vế hoặc thang xoắn là giải pháp hữu hiệu.
Bản vẽ nhà phố 5x14mHình 19: Cách tối ưu không gian cho nhà phố diện tích 70m2 mỗi sàn.
| Tiêu chí so sánh | Nhà ống (5x20m) | Nhà ngang (7x10m) | Nhà vuông (9x10m) |
|---|---|---|---|
| Ưu điểm | Dễ thiết kế, chi phí rẽ | Thoáng mát, dễ đón gió | Phong thủy tốt, cân đối |
| Nhược điểm | Thiếu sáng giữa nhà | Cần diện tích đất lớn | Khó tạo khối kiến trúc phá cách |
| Loại móng ưu tiên | Móng cọc ép | Móng băng | Móng bè |
Lưu ý về lựa chọn vật liệu thép từ bản vẽ thiết kế
Kỹ sư khi thực hiện bản vẽ kết cấu nhà 2 tầng luôn chỉ định mác thép rõ ràng (ví dụ: CB300-V hoặc CB400-V). Việc lựa chọn nguồn cung ứng thép uy tín quyết định trực tiếp đến cường độ chịu lực của dầm và cột.
Đối với các hạng mục như cột cờ, khung kèo mái hoặc hệ thống ống dẫn, việc sử dụng thép ống đúc tiêu chuẩn (ASTM A106/A53) giúp tăng khả năng chống ăn mòn và chịu áp lực tốt hơn các loại thép gia công thông thường. Hãy luôn kiểm tra chứng chỉ xuất xứ (CO) và chứng chỉ chất lượng (CQ) của vật liệu trước khi nhập kho công trường.
Bản vẽ kết cấu nhà 2 tầng là lời cam kết về sự an toàn và bền bỉ, giúp gia chủ tránh được những rủi ro pháp lý và kỹ thuật không đáng có. Một bộ hồ sơ hoàn chỉnh từ kiến trúc, kết cấu đến điện nước chính là bước chuẩn bị quan trọng nhất để xây dựng một tổ ấm an cư lạc nghiệp trường tồn theo thời gian.
Ngày Cập Nhật 02/03/2026 by Minh Anh
