Việc thi công công trình xây dựng đòi hỏi sự chính xác cao, đặc biệt là trong giai đoạn thiết kế và thi công kết cấu móng. Nguyên tắc bố trí thép dầm móng đúng chuẩn là nền tảng cốt lõi, đảm bảo khả năng chịu lực, sự ổn định và tuổi thọ lâu dài cho toàn bộ công trình. Bài viết này sẽ đi sâu vào quy trình, nguyên tắc và các yếu tố cần thiết để thực hiện việc bố trí thép dầm móng một cách tối ưu nhất, mang đến sự vững chắc cho mọi công trình.
Để hiểu rõ tầm quan trọng và cách thức thực hiện, chúng ta cần xác định bố trí thép dầm móng là tâm điểm ngữ nghĩa của bài viết. Việc bố trí thép không chỉ đơn thuần là sắp xếp các thanh thép mà là một quy trình kỹ thuật đòi hỏi sự am hiểu về kết cấu, vật liệu và các tiêu chuẩn xây dựng hiện hành.
Dầm Móng Là Gì Và Vai Trò Của Nó
Dầm móng, hay còn gọi là giằng móng, là một bộ phận kết cấu quan trọng. Nó có nhiệm vụ liên kết các chân cột và các đài móng riêng lẻ lại với nhau. Mục đích chính của việc này là để phân phối đều tải trọng từ công trình xuống nền đất, đồng thời tạo ra một hệ thống móng thống nhất, kiên cố và vững chắc hơn. Dầm móng thường được đặt nằm ngang theo chiều dài của công trình, nhưng vị trí cụ thể có thể thay đổi tùy thuộc vào sơ đồ kết cấu và thiết kế tổng thể.
Nguyên tắc bố trí thép dầm móng chuẩn xác đảm bảo an toàn kết cấu.
Cấu Tạo Chi Tiết Của Dầm Móng Theo Các Loại Móng
Dầm móng ngày càng trở nên phổ biến và được áp dụng linh hoạt cho ba loại móng chính: móng đơn, móng băng và móng bè. Mỗi loại móng này có đặc điểm và yêu cầu kỹ thuật riêng, từ đó ảnh hưởng đến cách bố trí dầm.
Dầm Móng Đơn
Dầm móng đơn có cấu tạo hình trụ, được tạo thành từ cốt thép dày đặc và đổ đầy bê tông bên trong. Hệ thống dầm móng đơn và nền móng được liên kết chặt chẽ, tạo nên một kết cấu vững chắc, giúp giảm thiểu ảnh hưởng tiêu cực từ sự biến động của nền đất lên công trình. Hơn nữa, dầm móng đơn đóng vai trò làm vật đỡ quan trọng cho các móng cốc, hạn chế tối đa tình trạng sụt lún hoặc lệch tâm giữa các đài móng. Loại móng này thường được ưu tiên sử dụng cho các công trình có trọng tải vừa và nhẹ, như nhà cấp bốn, nhà hai tầng hoặc ba tầng.
Kích thước tiêu chuẩn được khuyến nghị cho dầm móng đơn thường bao gồm:
- Lớp bê tông lót: dày 100mm.
- Kích thước dầm móng: 300×700(mm).
- Chiều cao của dầm móng bè (trong cấu tạo chung): 200mm.
Sơ đồ minh họa cấu tạo dầm móng đơn.
Dầm Móng Bè
Dầm móng bè là lựa chọn tối ưu cho các công trình xây dựng trên nền đất yếu. Thiết kế này giúp gia tăng đáng kể khả năng chịu tải của công trình. Cấu tạo của móng bè bao gồm nhiều lớp: một lớp bê tông lót mỏng, một lớp bản móng trải rộng khắp diện tích công trình, và hệ thống dầm móng kết nối.
Kích thước tiêu chuẩn cho dầm móng bè thường là:
- Lớp bê tông sàn dày 100mm.
- Chiều cao dầm móng: 200mm.
- Kích thước dầm móng: 300×700(mm).
- Thép cho bản móng: 2 lớp thép phi 12, bố trí với khoảng cách 200mm (phi 12a200).
- Thép cho dầm móng: Thép dọc gồm 6 thanh, với đường kính từ 20-22mm.
Cấu trúc dầm móng bè với bản móng và hệ thống dầm.
Dầm Móng Băng
Cấu tạo của dầm móng băng bao gồm một lớp bê tông lót móng, đảm bảo sự cố định và an toàn cho toàn bộ kết cấu. Lớp bê tông này giúp phân tán đều lực tác động từ công trình lên nền đất.
Các thông số kỹ thuật phổ biến cho dầm móng băng:
- Độ dày lớp bê tông lót dưới cùng: 100mm.
- Kích thước bản móng thông thường: Rộng từ 900-1200mm, dày 350mm.
- Kích thước dầm móng: Rộng 300mm, cao từ 500-700mm.
- Chiều rộng của giằng móng băng: Thường dưới 1.5m.
Thiết kế điển hình của dầm móng băng.
Nguyên Tắc Bố Trí Thép Dầm Móng Chuẩn Xác
Dầm là một trong những cấu kiện chịu lực chính trong công trình, đặc biệt có khả năng chịu uốn rất tốt. Việc bố trí thép dầm móng cần tuân thủ nghiêm ngặt các nguyên tắc kỹ thuật để tối ưu hóa khả năng chịu tải và đảm bảo an toàn.
Nguyên Tắc Bố Trí Thép Trong Thiết Diện Ngang Của Dầm
Việc bố trí thép theo thiết diện ngang là cực kỳ quan trọng, nó quyết định khả năng chịu lực và chống nứt của dầm.
Bước 1: Lựa Chọn Đường Kính Cốt Thép Dọc Dầm
Đây là bước nền tảng, đảm bảo dầm có thể chịu được tải trọng thiết kế. Nguyên tắc áp dụng bao gồm:
- Đối với dầm sàn thông thường, đường kính cốt thép chịu lực nên nằm trong khoảng từ 12mm đến 25mm.
- Riêng phần dầm chính có thể sử dụng thép với đường kính lớn hơn, lên đến 32mm.
- Một lưu ý quan trọng là đường kính của cốt thép dọc không được vượt quá tỷ lệ 1/10 so với bề rộng của dầm.
- Mỗi cấu kiện dầm không nên sử dụng quá ba loại đường kính thép khác nhau cho cốt chịu lực. Khoảng chênh lệch giữa các đường kính thép này tối thiểu phải là 2mm để đảm bảo tính liên kết và hiệu quả chịu lực.
Việc lựa chọn đường kính thép dọc ảnh hưởng trực tiếp đến khả năng chịu lực của dầm.
Bước 2: Lớp Bảo Vệ Cốt Thép Dầm
Lớp bê tông bảo vệ cốt thép có vai trò bảo vệ thép khỏi ăn mòn, xâm thực và đảm bảo khả năng chống cháy cho kết cấu. Cần phân biệt rõ lớp bảo vệ cho cốt thép chịu lực cấp 1 (C1) và cốt thép đai (cấp 2 – C2).
Nguyên tắc bắt buộc là chiều dày lớp bảo vệ phải:
- Không được nhỏ hơn đường kính của cốt thép.
- Không được nhỏ hơn giá trị Co theo quy định cụ thể cho từng vị trí và loại thép.
Cụ thể, đối với cốt thép chịu lực:
- Trong bản và tường có chiều dày < 100mm: Co = 10mm (khuyến nghị 15mm).
- Trong bản và tường có chiều dày > 100mm: Co = 15mm (khuyến nghị 20mm).
- Đối với dầm và sườn có chiều cao < 250mm: Co = 15mm.
- Đối với dầm và sườn có chiều cao > 250mm: Co = 20mm (khuyến nghị 25mm).
Đối với cốt thép cấu tạo, cốt thép đai:
- Khi chiều cao tiết diện < 250mm: Co = 10mm (khuyến nghị 15mm).
- Khi chiều cao tiết diện > 250mm: Co = 15mm (khuyến nghị 20mm).
Lớp bê tông bảo vệ cốt thép cần tuân thủ quy định để đảm bảo độ bền.
Bước 3: Khoảng Hở Của Cốt Thép Dầm
Khoảng hở giữa các thanh cốt thép là không gian trống (thông thủy) giữa chúng. Kích thước này phải đảm bảo:
- Không nhỏ hơn đường kính của thanh thép lớn hơn trong trường hợp có nhiều đường kính khác nhau.
- Không được nhỏ hơn các giá trị quy định cho khoảng hở tối thiểu.
Các quy định về khoảng hở khi bố trí thép dầm móng trong quá trình đổ bê tông bao gồm:
- Đối với lớp cốt thép đặt dưới cùng: Khoảng hở tối thiểu 25mm.
- Đối với lớp cốt thép đặt phía trên: Khoảng hở tối thiểu 30mm.
- Khi cốt thép được bố trí làm hai hàng (lớp trên và lớp dưới): Khoảng hở giữa hai hàng thép này cần lớn hơn, tối thiểu 50mm, để đảm bảo bê tông có thể luồn lấp đầy hoàn toàn.
Khoảng hở hợp lý giữa các thanh thép giúp bê tông lấp đầy, tạo sự liên kết chắc chắn.
Bước 4: Bố Trí Giao Nhau Của Cốt Thép Dầm
Khi các dầm giao nhau, đặc biệt là giữa dầm sàn và dầm chính, việc bố trí thép cần tuân theo các quy tắc để tránh xung đột và đảm bảo khả năng chịu lực.
- Khi dầm sàn giao với dầm chính tại điểm vuông góc, việc bố trí thép cần tính toán kỹ lưỡng để hai hệ thép không cản trở nhau quá nhiều.
- Nếu thép dầm sàn được bố trí thành hai hàng, chúng nên được đặt cách nhau một khoảng hợp lý. Điều này giúp các thanh thép của dầm chính có thể dễ dàng đặt vào vị trí mà không bị vướng, đảm bảo thi công thuận lợi và chính xác.
Nguyên Tắc Bố Trí Thép Dầm Móng Trong Thiết Diện Dọc
Bố trí thép theo thiết diện dọc liên quan đến việc đặt thép dọc chịu uốn, chịu cắt và neo thép.
Nguyên Tắc Chung Về Cách Bố Trí Thép Trong Dầm
- Trong các vùng có mô men âm, cốt thép dọc chịu kéo sẽ nằm ở phía trên của dầm. Ngược lại, ở vùng có mô men dương, cốt thép chịu kéo sẽ nằm ở phía dưới.
- Việc lựa chọn bố trí cốt thép cần được thực hiện dựa trên kết quả tính toán mô men uốn lớn nhất tại các tiết diện quan trọng.
- Khi thực hiện cắt hoặc uốn thép, cần đảm bảo phần thép còn lại (thép dư) vẫn đủ khả năng chịu lực theo mô men uốn tại các tiết diện thẳng góc và tiết diện nghiêng.
- Phần đầu của mỗi thanh thép chịu lực cần được neo chắc chắn vào bê tông theo quy định để phát huy hết khả năng chịu lực của nó.
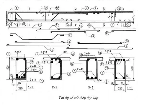
Nguyên Tắc Bố Trí Thép Cột Độc Lập (Cho Các Nhịp Dầm)
Phương pháp bố trí thép độc lập cho từng nhịp hoặc từng gối dầm mang lại sự linh hoạt cao trong thiết kế và thi công.
- Cốt thép độc lập thường là các thanh thép thẳng. Tuy nhiên, tại các đầu mút, chúng có thể được uốn cong để tạo thành cốt thép xiên.
- Các thanh thép xiên này có vai trò quan trọng trong việc chịu lực cắt hoặc có thể là cốt xiên dài theo cấu tạo. Chúng cũng có thể được sử dụng làm đoạn neo thép, đảm bảo liên kết chắc chắn.
- Số lượng thanh thép tại nhịp giữa, nhịp bên và trên gối tựa có thể khác nhau, tùy thuộc vào phân tích mô men và lực cắt tác dụng lên từng khu vực.
Sơ đồ minh họa cách bố trí thép độc lập cho các nhịp dầm.
Vai Trò Quan Trọng Của Dầm Móng Đối Với Công Trình
Dầm móng đóng một vai trò không thể thiếu trong việc đảm bảo sự bền vững và an toàn cho mọi công trình xây dựng. Chức năng chính của dầm móng bao gồm:
- Tăng cường độ cứng và phân bố tải trọng: Dầm móng giúp phân bổ đều và hiệu quả tải trọng từ công trình xuống nền móng, giảm thiểu áp lực tập trung lên từng điểm, từ đó bảo vệ kết cấu khỏi bị biến dạng hoặc sập đổ.
- Chống rạn nứt và thấm nước: Bằng cách liên kết các móng lại với nhau, dầm móng giúp ngăn ngừa sự hình thành các vết nứt trên bề mặt công trình do biến động của nền đất hoặc tải trọng không đều. Nó cũng góp phần hạn chế tình trạng thấm nước từ nền đất lên sàn.
- Giảm biến dạng sàn nhà: Dầm móng giúp giữ cho sàn nhà ổn định, giảm thiểu hiện tượng lún, võng hay biến dạng dưới tác động của tải trọng sử dụng.
- Chống xoay, chống xô lệch: Dầm móng đóng vai trò như các gối tựa vững chắc, ngăn chặn sự xoay chuyển hoặc xô lệch không mong muốn tại các điểm liên kết chân cột với móng.
- Tạo nền móng thống nhất: Liên kết chặt chẽ với hệ thống móng, dầm móng tạo nên một khối thống nhất, kiên cố, nâng cao đáng kể độ bền vững và tuổi thọ tổng thể của công trình.
Tại HRC Việt Nam, chúng tôi không chỉ cung cấp các giải pháp kết cấu thép mà còn quan tâm đến các vật liệu xây dựng tiên tiến khác. Chúng tôi hiện đang cung cấp tấm tường bê tông đúc sẵn – một vật liệu cách âm, cách nhiệt vượt trội, có khả năng chống chịu nước tốt hơn hẳn các vật liệu truyền thống. Quý khách hàng có nhu cầu tìm hiểu chi tiết về sản phẩm này hoặc cần tư vấn về các giải pháp xây dựng, xin vui lòng liên hệ HRC Việt Nam qua Hotline 0981158591 để nhận được hỗ trợ tốt nhất.
Tấm bê tông đúc sẵn HRC – giải pháp xây dựng hiện đại.
Tóm lại, việc bố trí thép dầm móng là một quy trình kỹ thuật phức tạp nhưng vô cùng quan trọng. Hiểu rõ và áp dụng đúng các nguyên tắc về cấu tạo, kích thước, lớp bảo vệ và khoảng hở cho cốt thép là yếu tố then chốt để xây dựng nên những công trình bền vững, an toàn và đạt chất lượng cao nhất. HRC Việt Nam luôn mong muốn mang đến những thông tin hữu ích và kinh nghiệm thực tế để hỗ trợ quý khách hàng trong quá trình thi công.
Ngày Cập Nhật 03/01/2026 by Minh Anh
