
Bản vẽ kết cấu thép nhà xưởng đóng vai trò cốt lõi, tạo nên bộ khung vững chắc cho mọi công trình công nghiệp. Hiểu rõ bản vẽ này là chìa khóa để đảm bảo sự an toàn, bền vững và hiệu quả xây dựng. Bài viết này cung cấp cái nhìn toàn diện về bản vẽ kết cấu thép nhà xưởng, từ định nghĩa, cấu tạo đến cách đọc và những lưu ý quan trọng, nhằm giúp bạn nắm vững kiến thức chuyên sâu và ứng dụng thực tế.

Định Nghĩa và Tầm Quan Trọng Của Bản Vẽ Kết Cấu Thép Nhà Xưởng
Bản vẽ kết cấu thép nhà xưởng là một tài liệu kỹ thuật thiết yếu. Nó chi tiết hóa cách thức xây dựng và liên kết các cấu kiện thép tạo thành bộ khung cho nhà xưởng. Tài liệu này hoạt động như một bản đồ chỉ dẫn chi tiết. Nó hướng dẫn các nhà thầu thi công, kỹ sư và công nhân trong suốt quá trình xây dựng. Thông thường, bản vẽ này được phát triển dựa trên cơ sở bản vẽ kiến trúc đã hoàn thiện.
Nội dung chính của bản vẽ tập trung vào việc mô tả cách các vật liệu thép được sử dụng, kết nối và lắp đặt trong công trình. Nó cung cấp những chỉ dẫn cụ thể. Các chỉ dẫn này giúp nhà thầu lựa chọn vật liệu phù hợp. Đồng thời, nó còn xác định rõ vị trí, cách thức bố trí của từng thành phần thép trong toàn bộ cấu trúc.

Thành Phần Chính Của Bản Vẽ Kết Cấu Thép Nhà Xưởng
Một bản vẽ kết cấu thép nhà xưởng thường bao gồm nhiều mục chi tiết. Mỗi mục đều mang một vai trò riêng biệt trong việc định hình và xây dựng công trình.
Chiều Cao Tổng Thể
Phần này thường quy định rõ chiều cao của công trình. Nó cũng xác định kích thước của các bức tường ngoại thất.
Kế Hoạch Bố Trí Kết Cấu
Sơ đồ này mô tả chi tiết cách bố trí các tầng, hệ thống móng và kết cấu mái. Nó cũng chỉ rõ vị trí chính xác của từng thành phần kết cấu bên trong công trình.
Yêu Cầu và Ý Tưởng Của Nhà Thầu
Phần này ghi nhận các yêu cầu đặc biệt. Nó được xác định dựa trên thỏa thuận giữa chủ đầu tư và nhà thầu. Thiết kế xây dựng sẽ tuân thủ các tiêu chí đã thống nhất.
Các Loại Bản Vẽ Kết Cấu Thép Nhà Xưởng Phổ Biến
Các loại bản vẽ kết cấu thép nhà xưởng đảm bảo rằng các khung thép được lắp đặt chính xác theo thiết kế. Chúng liên kết với nhau tạo thành một cấu trúc thống nhất, bền vững và có khả năng chịu lực cao.
Bản Vẽ Kết Cấu Móng
Bản vẽ này cung cấp thông tin chi tiết về phần móng. Bao gồm kích thước, độ dài, độ dày và các phương án thi công móng cụ thể.
Bản Vẽ Định Vị Cột
Phần này mô tả hình dáng, kích thước và vị trí chính xác của từng cột thép trong công trình.
Bản Vẽ Mặt Bằng Thép Sàn
Bản vẽ này thể hiện cách bố trí các thanh thép chịu lực trong hệ thống sàn nhà xưởng. Nó bao gồm cả sàn trên và sàn dưới.
Bản Vẽ Kết Cấu Mặt Bằng Chung
Cung cấp các thông số quan trọng về kết cấu tổng thể. Bao gồm thông tin về sàn, dầm, vị trí các yếu tố cấu trúc, cùng độ cao và độ dày của từng thành phần.
Nguyên Tắc Thiết Kế Bản Vẽ Kết Cấu Thép Nhà Xưởng Công Nghiệp
Để đảm bảo chất lượng công trình, bản vẽ kết cấu thép nhà xưởng công nghiệp cần được thiết kế một cách chi tiết và rõ ràng. Việc tuân thủ các nguyên tắc sau sẽ giúp tránh sai sót.
Khảo Sát Hiện Trường Kỹ Lưỡng
Trước khi bắt đầu thiết kế, việc khảo sát mặt bằng xây dựng là bắt buộc. Đánh giá các điều kiện địa chất, môi trường xung quanh là yếu tố quan trọng.
Tính Toán Tải Trọng Công Trình
Tải trọng là yếu tố quyết định sự vững chắc của công trình. Bản vẽ cần thể hiện rõ ràng việc tính toán các loại tải trọng. Bao gồm tải trọng tĩnh từ đất, lực gió, và các tác động khác.
Phân Tích Hoạt Tải Ứng Dụng
Hoạt tải công trình cũng cần được xem xét cẩn thận. Nếu công trình chịu tải trọng toàn diện, cần tính toán kỹ lưỡng. Đặc biệt khi hoạt tải có thể nhỏ hơn tĩnh tải. Khi tĩnh tải nhỏ hơn hoạt tải, việc kết hợp hoạt tải lệch tầng, lệch nhịp cần được phân tích. Các biện pháp gia cố có thể cần thiết.
Xác Định Độ Lớn Kết Cấu Thép
Xem xét độ lệch hoạt tải, khẩu độ nhịp kết cấu và cường độ địa chấn. Các yếu tố này giúp xác định biện pháp xử lý hoạt tải lệch nhịp, lệch tầng hiệu quả.
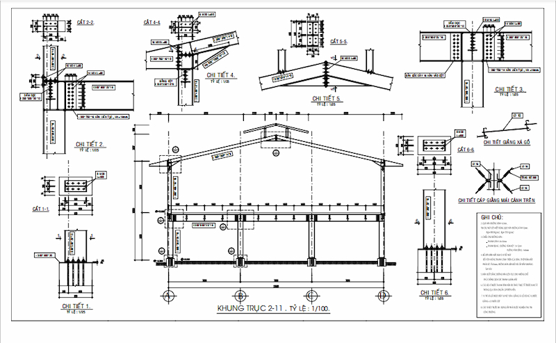
Hướng Dẫn Đọc Hiểu Bản Vẽ Kết Cấu Thép Nhà Xưởng
Việc đọc hiểu bản vẽ kết cấu thép là kỹ năng cần thiết cho mọi người tham gia dự án. Bản vẽ thường được chia thành nhiều phần, mỗi phần có ý nghĩa riêng.
Hướng Dẫn Thiết Kế Kết Cấu Thép
Phần này nêu bật các yêu cầu đặc biệt. Nó mô tả chi tiết về vật liệu, tiêu chuẩn kỹ thuật, và các biện pháp thi công được áp dụng.
Bản Vẽ Bố Trí Cơ Bản
Tập trung vào cao độ móng, trục định vị. Kiểm tra sự tương ứng giữa trục bản vẽ kiến trúc và móng. Phân tích mặt phẳng, mặt cắt móng để nhận diện thay đổi cao độ. Hiểu rõ kích thước và biện pháp gia cố từng bộ phận.
Bản Vẽ Bố Trí Kết Cấu
Bản vẽ này thể hiện hình chiếu bằng và mặt cắt. Xác định dạng kết cấu, vị trí và cao độ các cấu kiện chính. Kết hợp với bản vẽ kiến trúc để đối chiếu vị trí và cao độ. Phân loại các thành phần chính dựa trên bản vẽ tiêu chuẩn và chi tiết.
Bản Vẽ Kết Cấu Chi Tiết
Kiểm tra vị trí, cao độ, số lượng tất cả bộ phận trên mặt phẳng kết cấu. Đối chiếu với bản vẽ chi tiết để phát hiện xung đột về vị trí, độ cao, kích thước. Hiểu rõ phương thức kết nối các thành phần. Xác định các vị trí, độ cao có thể bị xung đột với các thành phần khác. Nắm vững chi tiết phụ kiện, thanh thép trong cấu kiện. Xác minh với bảng vật liệu.
Tóm lại, việc nắm vững bản vẽ kết cấu thép nhà xưởng là bước đi quan trọng hàng đầu để xây dựng nên những công trình công nghiệp vững chắc và an toàn. Sự tỉ mỉ trong từng chi tiết, từ khâu thiết kế đến thi công, sẽ mang lại hiệu quả tối ưu cho dự án.
Ngày Cập Nhật 31/12/2025 by Minh Anh
