
Việc xây dựng một ngôi nhà phố 3 tầng đòi hỏi sự chuẩn bị kỹ lưỡng, trong đó bản vẽ kết cấu thép nhà 3 tầng đóng vai trò là kim chỉ nam không thể thiếu. Đây là tập hợp các tài liệu kỹ thuật chi tiết, phản ánh chính xác ý đồ thiết kế và đảm bảo an toàn, bền vững cho công trình. Từ mỗi bản vẽ, chủ đầu tư, kiến trúc sư và kỹ sư xây dựng có thể dễ dàng hình dung phối cảnh kiến trúc, mặt bằng công năng, các thông số kỹ thuật quan trọng, cũng như vị trí cột, dầm sàn và các chi tiết cấu tạo. Bài viết này sẽ cung cấp cái nhìn toàn diện về thành phần, cách đọc và quy trình thi công dựa trên bản vẽ kết cấu thép nhà phố 3 tầng, giúp bạn nắm vững mọi khía cạnh cần thiết.
Trong quá trình tìm hiểu, bạn sẽ thấy bản vẽ kết cấu thép nhà phố 3 tầng là nền tảng cốt lõi. Các bản vẽ mặt bằng kết cấu thép và bản vẽ chi tiết cấu tạo thép là hai yếu tố quan trọng nhất. Các bản vẽ kỹ thuật nhà thép 3 tầng sẽ giúp bạn hiểu rõ hơn về cấu trúc chịu lực. Bên cạnh đó, hồ sơ thiết kế nhà khung thép 3 tầng cung cấp cái nhìn tổng thể.
Bản vẽ kết cấu thép nhà phố là một phần không thể thiếu trong quy trình xây dựng hiện đại.
Việc hiểu rõ kết cấu thép nhà 3 tầng mang lại lợi ích lâu dài cho chủ đầu tư.

Thành Phần Chi Tiết Của Bản Vẽ Kết Cấu Thép Nhà Phố 3 Tầng
Một bộ hồ sơ bản vẽ kết cấu thép nhà phố 3 tầng hoàn chỉnh thường bao gồm nhiều phần, mỗi phần phục vụ một mục đích riêng biệt nhưng cùng hướng tới sự chính xác và an toàn cho công trình.
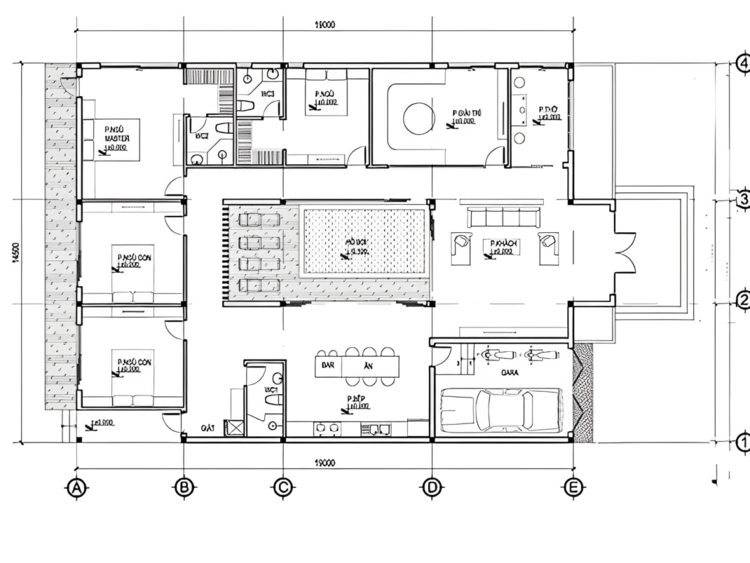
1. Phần Cấu Tạo Kiến Trúc và Mặt Bằng Công Năng
Đây là phần đầu tiên và quan trọng nhất, cung cấp cái nhìn tổng quan về bố cục và hình dáng của ngôi nhà.
- Bản vẽ Mặt bằng, Cao độ và Mặt cắt căn nhà:
- Mặt bằng thể hiện cách bố trí các phòng, tường, cửa sổ, cửa đi trên từng tầng.
- Cao độ ghi rõ chiều cao của các tầng, sàn, trần, ban công, giúp kiểm soát độ chênh lệch giữa các khu vực.
- Mặt cắt cho thấy cấu tạo bên trong của ngôi nhà theo một trục thẳng đứng, làm rõ cách các tầng, sàn, mái kết nối với nhau.
- Phối cảnh Mặt trước Công trình:
- Cung cấp hình ảnh trực quan về diện mạo bên ngoài của ngôi nhà, bao gồm mặt tiền, ban công, cửa chính, cửa sổ.
- Giúp chủ đầu tư hình dung rõ nét nhất về thẩm mỹ tổng thể của công trình sau khi hoàn thành.
- Bản vẽ Chi tiết Cầu thang:
- Mô tả chi tiết cấu tạo, kích thước, số bậc, chiều cao bậc thang.
- Xác định vật liệu sử dụng cho tay vịn, thành cầu thang.
- Đảm bảo sự an toàn và tiện dụng khi di chuyển giữa các tầng.
- Chi tiết Sàn, Cửa, Hoa Sen và Ban Công:
- Chi tiết cấu tạo sàn, bao gồm lớp vật liệu, độ dày, hệ thống kết cấu chịu lực.
- Kích thước và kiểu dáng của các loại cửa (cửa chính, cửa sổ, cửa phòng).
- Thiết kế ban công, bao gồm lan can, sàn, vị trí thoát nước.
- Thiết kế các chi tiết trang trí như hoa sen (nếu có).
- Bản vẽ Chi tiết Kiến trúc Cổng hàng rào (nếu có):
- Thiết kế chi tiết cổng chính, cửa rào, tường rào.
- Xác định vật liệu, kích thước, phong cách kiến trúc.
- Đảm bảo sự hài hòa với tổng thể kiến trúc ngôi nhà.
2. Phần Cấu Tạo Kết Cấu Chịu Lực Chính
Phần này tập trung vào hệ thống khung thép và các bộ phận chịu tải trọng của ngôi nhà, đảm bảo sự vững chắc và an toàn.
- Sơ đồ Móng và Chi tiết Móng:
- Bản vẽ thể hiện loại móng được sử dụng (móng băng, móng đơn, móng cọc, móng gạch, móng bè) và vị trí của chúng dưới công trình.
- Chi tiết cấu tạo móng, bao gồm kích thước, chiều sâu, vật liệu, cốt thép, bê tông.
- Xác định khả năng chịu tải của nền đất và thiết kế móng phù hợp.
- Sơ đồ Vị trí Cột và Chi tiết Cột:
- Thể hiện vị trí chính xác của tất cả các cột thép trong mặt bằng công trình.
- Cung cấp thông tin về kích thước tiết diện cột, vật liệu thép, cấu tạo mối nối, liên kết với móng và các cấu kiện khác.
- Đảm bảo cột đủ khả năng chịu lực thẳng đứng và các tải trọng ngang.
- Bản vẽ Sơ đồ Vị trí Dầm, Chi tiết Dầm Sàn:
- Xác định vị trí và kích thước của các dầm chính, dầm phụ, dầm sàn.
- Mô tả cấu tạo của dầm thép, bao gồm loại thép, kích thước cánh, bụng, mối hàn, bulông liên kết.
- Các bản vẽ kết cấu sàn thép nhà phố 3 tầng thuộc mục này, mô tả hệ thống sàn kết hợp thép, có thể là sàn deck bê tông cốt thép.
- Định vị Sàn Linoleum và Chi tiết Cấu tạo Sàn:
- Bản vẽ chi tiết về cấu tạo lớp sàn cuối cùng, bao gồm vật liệu hoàn thiện (gạch, gỗ, linoleum).
- Thể hiện lớp cách âm, cách nhiệt (nếu có).
- Đảm bảo bề mặt sàn phẳng, chịu lực tốt và thẩm mỹ.
- Bảng Thống kê Chất lượng và Số lượng Cốt thép:
- Liệt kê chi tiết tất cả các loại thép được sử dụng trong công trình, bao gồm chủng loại, mác thép, đường kính, số lượng, khối lượng.
- Giúp kiểm soát vật liệu, định lượng chi phí và đảm bảo đúng thiết kế.
3. Phần Hệ Thống Điện
Bản vẽ hệ thống điện đảm bảo việc cung cấp năng lượng an toàn và hiệu quả cho toàn bộ ngôi nhà.
- Bản vẽ Thiết kế Chiếu sáng:
- Bố trí các vị trí lắp đặt đèn chiếu sáng cho từng phòng, hành lang, cầu thang, ngoại thất.
- Xác định loại đèn, công suất, ánh sáng phù hợp với từng không gian.
- Thiết kế các Vị trí Ổ cắm và Công tắc:
- Bố trí các ổ cắm điện cho các thiết bị điện tử, điện gia dụng.
- Xác định vị trí và loại công tắc điều khiển đèn, quạt, các thiết bị khác.
- Đảm bảo sự tiện lợi và an toàn khi sử dụng.
- Thiết kế Cơ sở hạ tầng Internet, Truyền hình cáp, Dây điện thoại (nếu có):
- Bố trí các đường dây, ống luồn cho hệ thống mạng internet, truyền hình cáp, điện thoại.
- Xác định vị trí lắp đặt modem, router, các điểm kết nối.
- Sơ đồ Điện thông minh (nếu có):
- Thiết kế chi tiết hệ thống điện thông minh cho ngôi nhà, bao gồm điều khiển chiếu sáng, điều hòa, rèm cửa, an ninh.
- Mô tả cách thức hoạt động và kết nối của các thiết bị thông minh.
- Thống kê Vật liệu Điện:
- Liệt kê các loại dây điện, ống luồn, ổ cắm, công tắc, đèn, tủ điện và các vật tư điện khác.
- Giúp dự trù kinh phí và mua sắm vật liệu đầy đủ.
4. Phần Hệ Thống Nước (Cấp Thoát Nước)
Đảm bảo nguồn nước sạch và hệ thống thoát nước hiệu quả là yếu tố thiết yếu cho sinh hoạt.
- Thiết kế Hệ thống Lọc nước Hoàn chỉnh:
- Bố trí và mô tả chi tiết hệ thống lọc nước cho toàn bộ công trình, đảm bảo nước sinh hoạt đạt tiêu chuẩn.
- Hệ thống Dẫn nước, Cấp thoát nước cho Toàn bộ Công trình:
- Bản vẽ bố trí đường ống cấp nước sạch đến các khu vực sử dụng (nhà vệ sinh, bếp, máy giặt).
- Thiết kế hệ thống thoát nước thải, nước mưa, đảm bảo dòng chảy thông suốt và xử lý đúng quy định.
- Xác định vị trí các thiết bị vệ sinh, vòi nước, bồn rửa.
- Thống kê Vật liệu Thi công Hệ thống Nước:
- Liệt kê các loại ống nước, phụ kiện, van, thiết bị vệ sinh, máy bơm, máy lọc.
- Phục vụ công tác mua sắm và thi công.

Hướng Dẫn Đọc Bản Vẽ Kết Cấu Thép Nhà Phố Chuẩn Xác
Việc đọc hiểu bản vẽ kết cấu thép không chỉ là nhiệm vụ của kỹ sư mà còn rất quan trọng đối với chủ đầu tư để giám sát và trao đổi hiệu quả với nhà thầu.
- Bản Vẽ Định Vị Cột Thép:
- Mục đích: Bản vẽ này thể hiện rõ ràng vị trí, kích thước và tiết diện của từng cột thép trong mặt bằng tổng thể. Nó là cơ sở để xác định khung chịu lực chính của ngôi nhà.
- Ứng dụng: Kiến trúc sư và kỹ sư xây dựng dựa vào đây để đảm bảo cột được đặt đúng vị trí, đảm bảo khả năng chịu tải và tính thẩm mỹ. Trong quá trình thi công, đây là tài liệu tham chiếu trực tiếp để triển khai lắp đặt cột.
- Cách Đọc Bản Vẽ Kết Cấu Nhà Ở Thông Dụng:
- Hiểu rõ ký hiệu: Mỗi loại cấu kiện (cột, dầm, sàn, móng) và vật liệu sẽ có ký hiệu riêng. Cần nắm vững bảng chú giải ký hiệu đi kèm bản vẽ.
- Kiểm tra sự thay đổi: Nếu có bất kỳ thay đổi nào về tiết diện, vị trí cột hoặc dầm so với thiết kế ban đầu, bản vẽ cập nhật phải được ghi chú rõ ràng. Điều này đặc biệt quan trọng khi cần phá bỏ cấu kiện cũ hoặc điều chỉnh thiết kế.
- Bản Vẽ Kết Cấu Móng Thép:
- Thông tin chính: Cần xem xét kỹ các thông tin như loại móng được chỉ định (móng băng, móng đơn, móng cọc, móng gạch), sơ đồ bố trí móng, kích thước chi tiết của từng loại móng.
- Chi tiết thi công: Bản vẽ cũng bao gồm kế hoạch xây dựng tường móng, vị trí và kích thước của bể tự hoại, bể chứa nước ngầm (nếu có).
- Phù hợp: Đảm bảo loại móng được thiết kế phù hợp với địa chất khu vực và tải trọng của ngôi nhà 3 tầng khung thép.
- Bản Vẽ Kết Cấu Thép Sàn:
- Mục tiêu: Bản vẽ này tập trung vào hệ thống kết cấu của sàn, thường là sàn deck kết hợp bê tông cốt thép hoặc các hệ sàn thép chuyên dụng.
- Thông tin hiển thị: Nó sẽ chỉ ra vị trí, loại, đường kính, khoảng cách của cốt thép sàn trên và dưới, cũng như tiết diện của các dầm sàn phụ trợ. Cấu tạo lớp bê tông đổ lên trên sàn thép cũng được mô tả.
- Kết Cấu Mặt Bằng Chung:
- Xác định các yếu tố: Bản vẽ này xác định kích thước và vị trí của dầm chính, dầm phụ, cao độ các sàn, chiều dày sàn. Nó cũng thể hiện vị trí và kích thước các khẩu độ (lỗ mở) trên sàn cho cầu thang, giếng trời, hoặc các trục kỹ thuật.
- Chi tiết không gian: Thể hiện chi tiết các không gian chức năng như nhà vệ sinh, ban công, bếp, các khu vực cần gia cố đặc biệt.
- Gia cố kết cấu: Có các chi tiết kết cấu gia cố cho những khu vực chịu tải trọng lớn hoặc có yêu cầu đặc biệt về độ cứng vững.
Quy Trình Xây Dựng Nhà Phố Khung Thép 3 Tầng Từ Bản Vẽ
Quy trình xây dựng nhà khung thép đòi hỏi sự phối hợp nhịp nhàng giữa thiết kế, gia công và lắp dựng, tất cả đều dựa trên bộ bản vẽ kết cấu thép chuẩn xác.
Bước 1: Thiết Kế Bản Vẽ Nhà Khung Thép Theo Yêu Cầu
Đây là bước khởi đầu, nơi mọi ý tưởng và yêu cầu của chủ đầu tư được hiện thực hóa thành các bản vẽ kỹ thuật.
- Lấy bản vẽ theo yêu cầu: Chủ đầu tư làm việc với kiến trúc sư, kỹ sư để có được bộ bản vẽ chi tiết cho nhà khung thép 3 tầng (hoặc số tầng mong muốn). Bộ bản vẽ này bao gồm các phần kiến trúc, kết cấu (thép), và hệ thống điện nước.
- Bố trí mặt bằng: Bản vẽ kiến trúc phải đảm bảo sự phù hợp với sơ đồ kết cấu khung thép, đồng thời tạo điều kiện thuận lợi cho việc mở rộng hoặc điều chỉnh hệ thống kèo thép trong tương lai nếu cần.
- Thiết kế kết cấu chính: Kỹ sư kết cấu sẽ tính toán và thiết kế hệ khung thép chịu lực chính, đảm bảo khả năng chống đỡ mọi tải trọng tác động (tải trọng tĩnh, tải trọng động, tải trọng gió, động đất) một cách an toàn và hiệu quả nhất.
- Tài liệu thiết kế đầy đủ: Hồ sơ thiết kế nhà thép tiền chế và bản vẽ thi công cần đầy đủ các yếu tố, thông số kỹ thuật, vật liệu, tiêu chuẩn áp dụng.
- Tối ưu vật liệu và chi phí: Lựa chọn vật liệu và chi tiết cấu tạo phù hợp với tiêu chuẩn, đồng thời đảm bảo tính kinh tế, tiết kiệm chi phí nhưng vẫn ưu tiên chất lượng và an toàn.
Bước 2: Gia Công Cấu Kiện Thép Tại Xưởng
Sau khi bản vẽ được duyệt, các cấu kiện thép sẽ được sản xuất hàng loạt tại nhà xưởng theo quy trình chuyên nghiệp.
- Quy trình sản xuất: Các cấu kiện thép như dầm, cột, kèo, xà gồ, sàn deck… được cắt từ các tấm thép theo đúng kích thước và hình dạng trên bản vẽ.
- Chế tạo chi tiết: Bản mã (tấm thép dùng để liên kết các cấu kiện) được gia công, đục lỗ theo thiết kế.
- Hàn nối: Các cấu kiện được ráp lại bằng máy hàn hoặc mối hàn tạm để định hình. Sau đó, sử dụng các thiết bị chuyên dụng (như động cơ thủy lực) để hàn nắn, đảm bảo các cấu kiện được kết nối chính xác, thẳng hàng và chắc chắn.
- Hoàn thiện: Sau khi hàn, cấu kiện được kiểm tra, vệ sinh sạch sẽ và tiến hành sơn chống gỉ, chống cháy theo yêu cầu kỹ thuật.
Bước 3: Lắp Dựng Nhà Khung Thép Tại Công Trường
Đây là giai đoạn cuối cùng, nơi các cấu kiện đã được gia công sẽ được vận chuyển đến công trường và lắp ráp thành ngôi nhà hoàn chỉnh.
- Chuẩn bị lắp ghép: Công tác chuẩn bị mặt bằng, định vị tim trục công trình, chuẩn bị đầy đủ thiết bị nâng hạ (cần cẩu), vật tư phụ.
- Lắp dựng cột: Các cột thép được dựng lên và cố định tạm thời vào móng bằng các bulông neo.
- Dựng kèo và xà gồ: Các cấu kiện kèo (thường ở vị trí mái) và xà gồ (thanh đỡ cho mái và vách) được lắp dựng sau cột.
- Lắp đặt khung kèo và giằng: Các thanh giằng được lắp vào hệ khung để tăng độ ổn định và cứng vững cho toàn bộ kết cấu.
- Lắp dựng kèo đầu hồi: Nếu có, các kèo ở hai đầu hồi của công trình sẽ được lắp dựng.
- Hoàn thiện hệ xà gồ: Lắp đặt toàn bộ xà gồ cho mái và vách, cùng với các thanh chống xà gồ.
- Lắp đặt tôn lợp mái và bao che: Tôn mái được kéo lên và cố định, sau đó là lắp đặt các tấm vật liệu bao che cho vách.
- Hoàn thiện công trình: Các công tác hoàn thiện khác như lắp đặt cửa, hệ thống điện nước, sơn bả, ốp lát… sẽ được tiến hành song song hoặc sau giai đoạn lắp dựng khung.
Bên cạnh đó, việc tham khảo các mẫu bản vẽ kết cấu thép nhà phố cũng là một cách hay để chủ đầu tư có thêm ý tưởng và hiểu biết.
Mỗi bản vẽ kết cấu nhà thép 3 tầng là một tài liệu kỹ thuật quan trọng, đòi hỏi sự chính xác cao.
Tập trung vào các bản vẽ kỹ thuật thép sẽ giúp công trình đảm bảo an toàn và hiệu quả.
Thông tin chi tiết và tư vấn chuyên sâu về bản vẽ kết cấu thép nhà phố 3 tầng, vui lòng liên hệ với chúng tôi để nhận được sự hỗ trợ tốt nhất.
Ngày Cập Nhật 02/01/2026 by Minh Anh
