Bản vẽ nhà khung thép dân dụng ngày càng trở nên phổ biến, phản ánh xu hướng kiến trúc hiện đại ưu tiên sự bền vững, hiệu quả và thẩm mỹ. Đây không chỉ là yếu tố kỹ thuật cần thiết cho mọi công trình mà còn là nền tảng để hiện thực hóa ý tưởng xây dựng, đảm bảo công trình an toàn, chất lượng và tối ưu chi phí. Nội dung dưới đây sẽ cung cấp cái nhìn toàn diện về bản vẽ nhà khung thép dân dụng, quy trình thiết kế, gia công, lắp dựng cùng các yếu tố chi phí liên quan, giúp bạn có cái nhìn rõ nét nhất về loại hình nhà ở này.
Nhiều người thường nhầm lẫn nhà khung thép dân dụng chỉ là các cấu trúc lắp ghép đơn giản. Tuy nhiên, đằng sau vẻ ngoài linh hoạt là một quy trình kỹ thuật phức tạp, đòi hỏi sự tính toán chính xác từ bản vẽ nhà khung thép dân dụng. Bản vẽ này là kim chỉ nam cho việc xây dựng, đảm bảo mọi thành phần từ cột, dầm, kèo, sàn đều được thiết kế với khả năng chịu lực tối ưu, phù hợp với mục đích sử dụng và các tiêu chuẩn xây dựng quốc gia. Các chuyên gia trong ngành nhấn mạnh tầm quan trọng của việc có một bộ bản vẽ nhà khung thép dân dụng chi tiết trước khi bắt tay vào thi công để tránh sai sót, tiết kiệm thời gian và nguồn lực.
Nhà Khung Thép Dân Dụng Là Gì?
Nhà khung thép dân dụng, thường được gọi là nhà tiền chế, là một loại hình công trình sử dụng chủ yếu các cấu kiện thép để tạo nên bộ khung chịu lực chính. Bộ khung này bao gồm cột, dầm, kèo, xà gồ, sàn,… có nhiệm vụ gánh toàn bộ tải trọng của tòa nhà, từ đó truyền xuống hệ thống móng. Cấu trúc này cho phép linh hoạt trong thiết kế không gian bên trong, tạo ra các khu vực rộng rãi mà không bị cản trở bởi cột phụ.
Các công trình nhà ở, nhà xưởng, nhà kho, cửa hàng, thậm chí là các công trình công cộng như bệnh viện dã chiến hay trường học đều có thể được xây dựng bằng kết cấu thép tiền chế. Các loại hình phổ biến bao gồm nhà khung thép 1 tầng, nhà khung thép 2 tầng, nhà có mái tôn hoặc mái ngói, tùy thuộc vào yêu cầu thiết kế và mục đích sử dụng. Sự đa dạng trong ứng dụng càng làm nổi bật tính ưu việt của loại hình kết cấu này.
Ưu Điểm Vượt Trội Của Nhà Khung Thép Dân Dụng
Sức hút của nhà khung thép dân dụng không chỉ đến từ sự hiện đại mà còn bởi hàng loạt ưu điểm vượt trội so với các phương pháp xây dựng truyền thống:
- Tiết Kiệm Chi Phí: Mặc dù chi phí ban đầu cho vật liệu thép có thể tương đương hoặc cao hơn, nhưng tổng thể chi phí xây dựng nhà khung thép thường thấp hơn đáng kể. Điều này có được nhờ quy trình sản xuất cấu kiện tại nhà máy, giảm thiểu nhân công tại công trường, thời gian thi công nhanh chóng và giảm thiểu lãng phí vật liệu.
- Thời Gian Thi Công Nhanh Chóng: Các cấu kiện thép được sản xuất theo bản vẽ tại nhà máy và chỉ cần lắp ráp tại công trường. Quá trình lắp dựng diễn ra nhanh chóng, giúp rút ngắn thời gian hoàn thành công trình, tiết kiệm chi phí thuê nhân công, chi phí sinh hoạt và sớm đưa công trình vào sử dụng.
- Kết Cấu Gọn Nhẹ và Bền Vững: Khung thép có tỷ lệ giữa độ bền và trọng lượng rất cao. Điều này cho phép tạo ra các kết cấu mỏng nhẹ nhưng vẫn đảm bảo khả năng chịu lực và độ bền vượt trội. Trọng lượng nhẹ cũng giúp giảm tải trọng lên móng, tiết kiệm chi phí nền móng. Thép cũng có khả năng chống ăn mòn và cháy nổ tốt hơn nếu được xử lý bề mặt và thiết kế phù hợp.
- Khả Năng Tạo Hình Đỉnh Cao: Thép là vật liệu dễ dàng uốn cong, tạo hình theo mọi yêu cầu thiết kế. Điều này mang lại sự tự do sáng tạo cho kiến trúc sư và chủ đầu tư, cho phép tạo ra những công trình độc đáo, mang đậm dấu ấn cá nhân hoặc đáp ứng các yêu cầu kiến trúc đặc biệt. Khả năng tùy biến cao cũng giúp dễ dàng mở rộng, sửa đổi công trình trong tương lai.
- Tính Thân Thiện Với Môi Trường: Thép là vật liệu có thể tái chế, góp phần bảo vệ môi trường. Quá trình sản xuất thép ngày càng được cải tiến để giảm thiểu tác động. Việc thi công nhanh chóng cũng giảm thiểu tiếng ồn và bụi bẩn tại công trường.
Mô tả bản vẽ nhà khung thép dân dụng với kết cấu gọn nhẹ và khả năng tạo hình linh hoạtBản vẽ nhà khung thép dân dụng là yếu tố cốt lõi để khai thác tối đa các ưu điểm của vật liệu thép.
Quy Trình Xây Dựng Nhà Theo Bản Vẽ Khung Thép Dân Dụng
Để có được một công trình nhà ở hoàn chỉnh và chất lượng từ bản vẽ nhà khung thép dân dụng, quy trình thi công cần tuân thủ các bước sau:
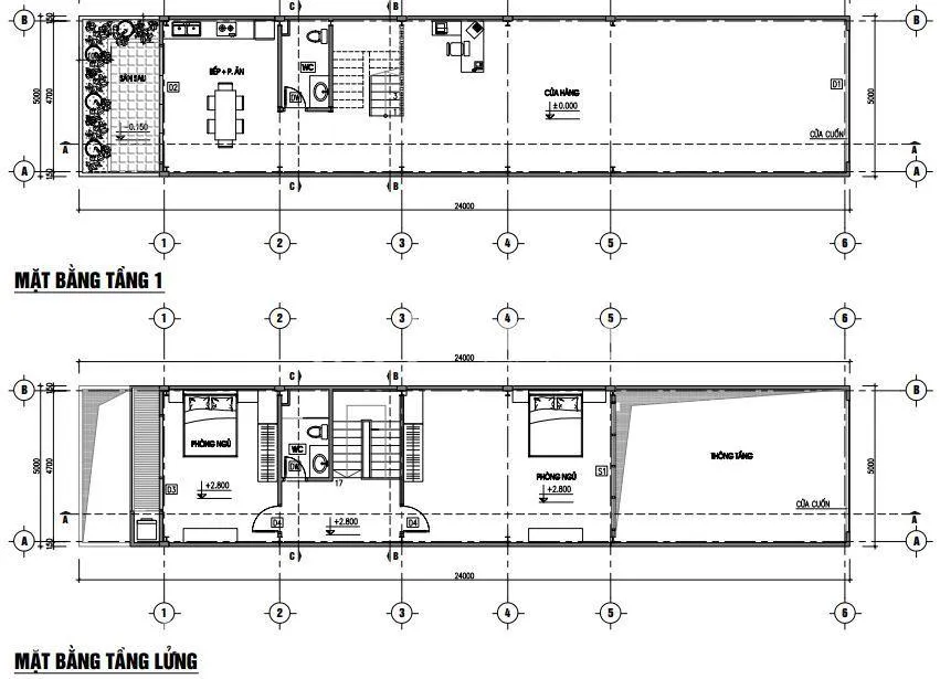
Bước 1: Thiết Kế Bản Vẽ Nhà Khung Thép Dân Dụng
Đây là bước quan trọng nhất, nơi ý tưởng của chủ đầu tư được hiện thực hóa thành các bản vẽ kỹ thuật chi tiết. Một bộ bản vẽ nhà khung thép dân dụng đầy đủ bao gồm:
- Bản vẽ kiến trúc: Thể hiện mặt bằng, mặt đứng, mặt cắt, bố trí công năng, chi tiết các phòng, ban công, cửa sổ, cửa đi,…
- Bản vẽ kết cấu: Xác định vị trí, kích thước, loại vật liệu của các cấu kiện thép (cột, dầm, kèo, xà gồ, sàn), chi tiết liên kết, tính toán khả năng chịu tải trọng.
- Bản vẽ hệ thống kỹ thuật: Bao gồm bản vẽ hệ thống điện, cấp thoát nước, thông gió, phòng cháy chữa cháy,…
Việc thiết kế cần đảm bảo sự đồng bộ giữa kiến trúc và kết cấu, phù hợp với các tiêu chuẩn xây dựng hiện hành và ngân sách của chủ đầu tư. Các kỹ sư sẽ tính toán để đảm bảo khung thép có khả năng chịu lực tốt nhất, đồng thời tối ưu hóa việc sử dụng vật liệu để tiết kiệm chi phí mà vẫn đảm bảo an toàn và chất lượng.
Quy trình thiết kế bản vẽ nhà khung thép dân dụngThiết kế bản vẽ chi tiết là nền tảng cho mọi công trình nhà khung thép dân dụng.
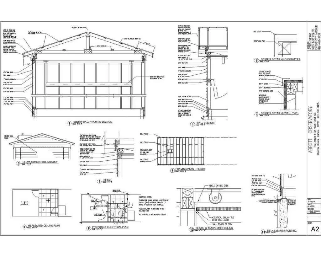
Bước 2: Gia Công Cấu Kiện Thép
Dựa trên bản vẽ nhà khung thép dân dụng đã được phê duyệt, các cấu kiện thép sẽ được gia công tại nhà máy hoặc xưởng sản xuất chuyên nghiệp. Quy trình này bao gồm các công đoạn như cắt thép theo kích thước yêu cầu, hàn các bản mã và chi tiết liên kết, lắp ráp thành các cấu kiện hoàn chỉnh (cột, dầm, kèo,…). Sau khi hoàn thành, các cấu kiện sẽ được kiểm tra chất lượng, vệ sinh bề mặt và sơn chống gỉ, chống cháy theo tiêu chuẩn.
Bước 3: Lắp Dựng Nhà Khung Thép
Sau khi các cấu kiện thép được sản xuất và vận chuyển đến công trường, đội ngũ kỹ thuật sẽ tiến hành lắp dựng theo đúng bản vẽ nhà khung thép dân dụng. Quá trình này thường bao gồm các bước như:
- Chuẩn bị mặt bằng và định vị tim trục công trình.
- Lắp dựng cột thép và cố định tạm thời.
- Dựng kèo, lắp đặt các thanh giằng, thanh chống để tạo khung chính cho mái.
- Lắp đặt toàn bộ xà gồ và các thanh chống đỡ.
- Kéo tôn hoặc vật liệu lợp mái lên trên.
- Tiến hành lợp mái và lắp dựng vách bao che công trình (bằng tôn, tấm panel, gạch nhẹ,…).
- Hoàn thiện các hạng mục phụ trợ như cửa, sàn, hệ thống kỹ thuật,…
Lắp dựng kết cấu nhà khung thép theo bản vẽQuy trình lắp dựng nhà khung thép diễn ra nhanh chóng dựa trên bản vẽ chi tiết.
Chi Phí Xây Dựng Nhà Theo Bản Vẽ Khung Thép Dân Dụng
Chi phí xây dựng nhà khung thép dân dụng phụ thuộc vào nhiều yếu tố, nhưng việc có một bản vẽ nhà khung thép dân dụng chi tiết sẽ giúp dự trù kinh phí chính xác hơn. Các khoản chi phí chính bao gồm:
- Chi phí thiết kế: Bao gồm công sức của kiến trúc sư, kỹ sư kết cấu để lập ra bộ bản vẽ.
- Chi phí gia công kết cấu thép: Tính theo khối lượng thép, loại thép sử dụng, độ phức tạp của cấu kiện và chi phí gia công, sơn chống gỉ. Đơn giá này sẽ thay đổi tùy theo yêu cầu kỹ thuật, chiều cao, độ rộng của công trình.
- Chi phí vận chuyển: Vận chuyển cấu kiện thép từ nhà máy đến công trường.
- Chi phí lắp dựng: Nhân công lắp dựng, máy móc hỗ trợ.
- Chi phí vật liệu hoàn thiện: Tôn lợp mái, vật liệu làm vách bao che (tôn, panel, gạch nhẹ,…), vật liệu làm sàn, hệ thống điện nước, cửa, sơn bả,…
Ví dụ, chi phí thi công phần khung thép tiền chế có thể được tính theo đơn giá m2 dựa trên khối lượng thép. Sàn bê tông nhẹ hoặc sàn deck có thể có đơn giá khoảng từ 600.000 VNĐ/m2. Tấm bê tông nhẹ làm tường cũng có thể có giá khoảng 580.000 VNĐ/m2. Tuy nhiên, đây chỉ là báo giá tham khảo và có thể biến động.
Việc tham khảo các đơn vị cung cấp uy tín và yêu cầu báo giá chi tiết dựa trên bản vẽ nhà khung thép dân dụng của bạn là cách tốt nhất để có được dự toán chính xác nhất cho công trình.
Nhìn chung, bản vẽ nhà khung thép dân dụng đóng vai trò là linh hồn của mỗi công trình, quyết định đến tính thẩm mỹ, khả năng chịu lực, sự an toàn và hiệu quả chi phí. Hiểu rõ về quy trình thiết kế, gia công, lắp dựng và các yếu tố chi phí sẽ giúp bạn đưa ra những quyết định sáng suốt cho dự án xây dựng của mình.
Quỳnh Thư (Tổng hợp)
Ngày Cập Nhật 03/01/2026 by Minh Anh
